Bauen im Bestand
Bestehende Gebäude weiterzudenken, ist für uns mehr als eine technische Aufgabe – es ist eine gestalterische Haltung. Wir planen und realisieren Umbauten, Modernisierungen und Transformationen von Wohnräumen im Bestand – mit dem Ziel, neue Qualitäten zu schaffen, ohne den Charakter des Ortes zu verlieren.
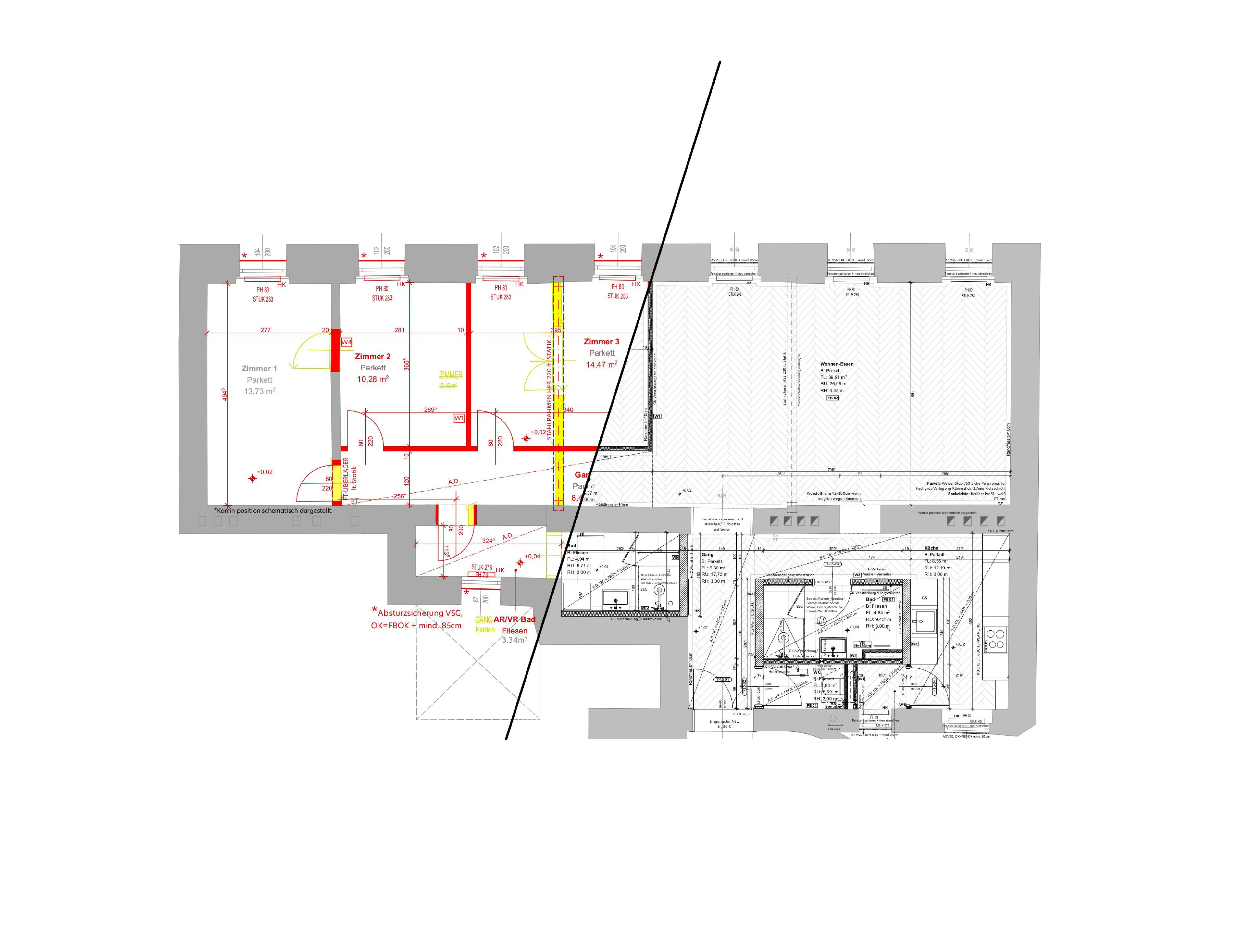
Vom Gründerzeit-Zinshaus bis zum 70er-Jahre-Bestand: wir analysieren, was der Raum kann – und was er braucht. Dabei achten wir auf räumliche Klarheit, zeitgemäße Funktionalität und eine stimmige Atmosphäre.
Wir glauben daran, dass gute Architektur nicht neu sein muss – sondern gut gemacht. Darum arbeiten wir mit dem Vorhandenen, entwickeln individuelle Lösungen und bringen Vergangenheit und Gegenwart in Einklang.

Prozess
Wir begleiten unsere Auftraggeber:innen durch 5 klar strukturierte Phasen – von der ersten Idee bis zur fertigen Umsetzung:
Zunächst definieren wir gemeinsam die Herausforderung: Was soll sich verändern? Was sind Ihre Wünsche und Prioritäten? Darauf aufbauend entwickeln wir ein architektonisches Konzept, das präzise auf Ihre Lebensweise und die vorhandene Bausubstanz abgestimmt ist. In einem individuell erarbeiteten Maßnahmenkatalog formulieren wir konkrete räumliche, funktionale und gestalterische Schritte. Die anschließende Detailplanung schafft die Grundlage für eine verlässliche Umsetzung, die wir bis zur Fertigstellung eng begleiten.
PHASE 1 Analyse
Effiziente Planung für nachhaltige Gebäudestrukturen
Wir analysieren die Möglichkeiten zur Optimierung von Raumstruktur, Energieeffizienz und Erhaltung bestehender Potentiale. Unter Berücksichtigung von Zeit, Kosten und technischer Machbarkeit entwickeln wir Lösungen für eine wirtschaftlich und funktional sinnvolle Umsetzung – z. B. durch moderne Heizsysteme und zeitgemäße Raumaufteilungen.

PHASE 02 Entwurf
Technisch fundiert und regelkonform planen
In dieser Phase prüfen wir die bauliche Machbarkeit und loten die behördlichen Vorgaben und Möglichkeiten aus. Die Definition der Aufbauten sowie bauphysikalische Optimierung in den Bereichen Wärme- und Schallschutz schaffen die Grundlage für langlebige, wirtschaftliche Bauprojekte – technisch präzise und zukunftssicher geplant.
PHASE 03 Vorbereitung
Technisch durchdacht und wirtschaftlich vorbereitet
In der Vorbereitungsphase erstellen wir vollständige Einreichpläne und stimmen sämtliche Unterlagen mit den zuständigen Behörden ab. Wir gewährleisten eine regelkonforme, genehmigungsfähige Planung – fundiert und effizient. In dieser Phase definieren wir Materialien, Bauteilaufbauten und Ausführungsdetails in Abstimmung mit den Gewerken. Wir erstellen präzise Planunterlagen zur Realisierung und sichern durch frühzeitige Materialfestlegung die Kosten- und Termintreue Ihres Projekts.

PHASE 04 Umsetzung
Koordinierte Umsetzung auf der Baustelle
Wir begleiten die Umsetzung Ihrer Projekte mit örtlicher Bauaufsicht, architektonischer Kontrolle und detaillierter Koordination aller beteiligten Gewerke. Durch die enge Abstimmung zwischen Planung und Bauablauf stellen wir Qualität, Kostenkontrolle und Terminsicherheit sicher.
PHASE 5 Abschluss
Projektabschluss – strukturiert und vollständig dokumentiert
Im letzten Schritt des Projekts übernehmen wir die Aufbereitung aller Unterlagen für Dokumentation und Vermarktung sowie die rechtssichere Abwicklung der Fertigstellungsanzeige bei der zuständigen Behörde. So endet Ihr Projekt planmäßig und lückenlos dokumentiert.

Kontakt Altbau mit Potenzial?
Wir entwickeln smarte Lösungen für Umbau, Sanierung oder Aufstockung.






