
- Projekt
- Pädagogische Hochschule Salzburg
- Jahr
- 2023
- Typ
- Bildung
- Status
- Wettbewerb
- Größe
- L
- Leistungsmodell / -Phasen
- Generalplaner
Architektur, die aus dem Bestand heraus wächst
Wie lässt sich ein Gebäude so denken, dass seine Vergangenheit nicht überwunden, sondern erhört wird?
Diese Frage ist der leise Ursprung eines Projekts, das nicht laut sein will, sondern klar. Die bestehende Struktur wurde nicht als Hindernis gesehen, sondern als Resonanzraum: für Potenziale, die sich unter der Oberfläche verbergen, für Räume, die darauf warten, belebt zu werden. Ein präziser architektonischer Eingriff – nicht mehr als notwendig, nicht weniger als sinnvoll – transformiert das alte Volumen in eine neue Ordnung. Ein kompakter, L-förmiger Baukörper, der sich um einen zentralen Hof legt – offen, einladend, verbindend. Aus dem Bestehenden wächst das Neue. Es entsteht ein Ort für Lernen, Begegnung und Bewegung. Ein Gebäude, das nicht nur Form gibt, sondern Haltung zeigt.

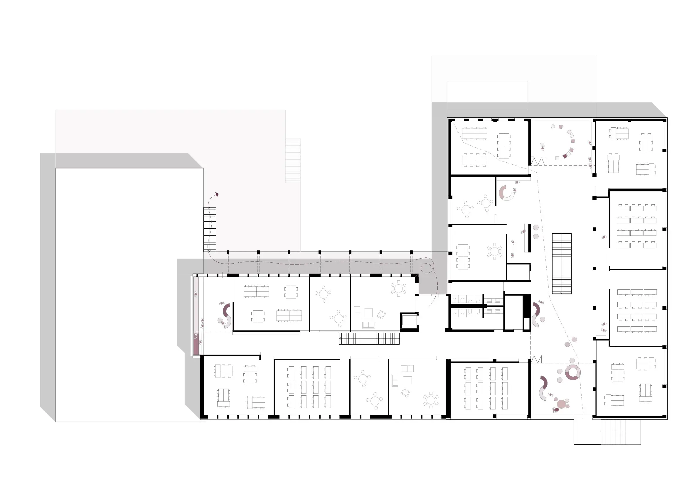
Innenhof als Bühne des Alltags
Der Entwurf folgt dem Prinzip: Weniger Eingriff, mehr Wirkung. Statt das Alte zu verdrängen, wird es aktiviert – ein einzelner präziser Schnitt genügt, um aus einem fragmentierten Ensemble ein L-förmiges Gebäude mit klarem Zentrum zu formen. Der neue Innenhof wird zur Bühne des Alltags:Begegnung, Bewegung, Ruhe – alles findet hier seinen Ort.
Der Eingang zur Schule, der Speisesaal, ein barrierefreier Zugang – sie treffen sich an einem architektonischen Knotenpunkt. Bestand und Erweiterung treten in Beziehung, Dialogräume entstehen zwischen Hof, Speisesaal und Bibliothek. So wird aus Struktur eine Idee – und aus dem Gebäude ein lebendiger Organismus.

Architektur im Rhythmus der Zeit
Die Weiterverwendung des Bestands ist Programm: ökonomisch sinnvoll, ökologisch notwendig und architektonisch durchdacht. Mit gezielten Aufstockungen, Fassadensanierung, Sonnenschutz und natürlicher Belüftung erreicht das Projekt Klimaaktiv Silber.
Holz als Hauptbaustoff, begrünte Dächer mit PV-Anlagen, flexible Raumstrukturen und eine klare Erschließung sorgen für ein zukunftsfähiges Gebäude. Der Innenhof bleibt das Herzstück – offen, kommunikativ und identitätsstiftend. Nachhaltigkeit zeigt sich hier nicht als Zusatz, sondern als architektonische Haltung.
Projekt Info
Auftragsart
EU-weit offener, einstufiger, anonymer Realisierungswettbewerb
Auftraggeber
BIG - Bundesimmobiliengesellschaft m.b.H.
MitarbeiterInnen
Marco Macrelli, Iva Shokoska
Landschaftsplanung
Studio Boden
Bauphysik
VASKO + PARTNER
Tragwerksplanung
VASKO + PARTNER
Brandschutz
VASKO + PARTNER
TGA
VASKO + PARTNER



